Projekte
Maximale Raumnutzung durch Doppelstockparker
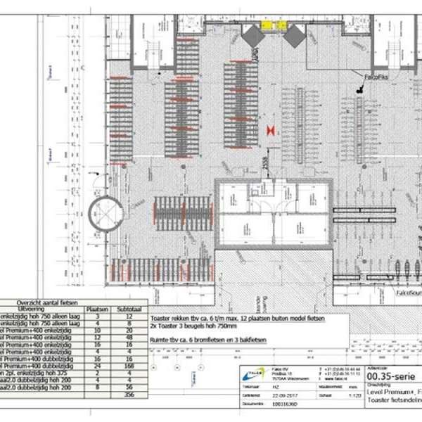
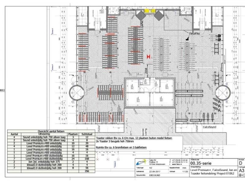
Die Entwicklungsabteilung hat vorab eine Zeichnung zur optimalen Raumnutzung der Fahrradparkgarage entworfen. Hieraus wurde auch deutlich, wie die Räder optimal geparkt werden sollten. Die meisten Fahrräder sollte in Doppelstockparkern untergebracht werden können. In der U-Bahn-Station wurden die hochwertigen Doppelstockparker FalcoLevel Premium+ gewählt. Ein- und doppelseitig zu nutzen können hierin 272 Fahrräder auf zwei Ebenen geparkt werden. Die Nutzung der oberen Ebene geht durch das einfache System mit Gasdruckfeder leicht von der Hand, unten haben die Fahrräder mehr Platz und sind so leichter zu parken und vor eventuellen Schädigungen durch zu enge Fahrradstellplätze geschützt.
Ausgezeichnete Fahrradständer
60 Fahrräder können in den Falco Fahrradständern Ideal 2.0 geparkt werden. Diese sind mit dem niederländischen Gütesiegel für optimales Fahrradparken ausgezeichnet und gewährleisten somit angenehmes und sicheres Fahrradparken. Dieser Fahrradständer hat einen Mittenabstand von 40cm, der sorgt für genügend Platz, die speziellen Anbindebügel, die in diesem Projekt eigens hinzugefügt wurden, sorgen für extra Diebstahlschutz.
Spezialfahrräder: Fahrradparken kein Problem
Anders als bei den anderen FalcoSound Fahrradständern mit hohen und niedrigen Abstellplätzen wurde im Fahrradparkraum bei der U-Bahn-Station eine Variante des niedrigen FalcoSound Fahrradständers gewählt, der über niedrige Fahrradabstellplätze und außerdem über einen besonders breiten Mittenabstand von 60cm verfügt. Dies bietet einen besonderen Vorteil: Der spezielle niedrige Fahrradständer FalcoSound eignet sich dadurch speziell für außergewöhnliche Fahrräder wie Transportfahrräder, Fahrräder mit Fahrradkorb und andere, breitere Fahrräder, die im FalcoSound Fahrradständer niedrig einfach und sicher geparkt werden können. Zudem ist die besondere Form der Fahrradbügel des niedrigen FalcoSound Fahrradständers äußerst reifenfreundlich.
Fahrradparkraum mit E-Bike Ladestation
E-Bikes werden immer beliebter und auch in der Fahrradgarage bei Rotterdam wurde an die E-Bikes gedacht. Im Fahrradständer FalcoIon mit eingebauter E-Bike Ladestation kann das E-Bike geparkt und gleichzeitig aufgeladen werden, so sind E-Biker bei der Rückkehr von ihrer Reise direkt wieder startklar. Besonders attraktiv für Pendler und alle, die gleich nach Ankunft wieder losfahren wollen.
Fahrradanlehnbügel für volle Flexibilität
Die FalcoToaster Fahrradanlehnbügel im Fahrradparkraum bei der U-Bahn-Station bei Rotterdam sind eine Kombination aus klassischen Anlehnbügeln und Fahrradständern. Hier können besonders spezielle Fahrräder wie Transporträder und auch Roller einfach geparkt und diebstahlsicher angekettet werden. Mit dem FalcoToaster Fahrradanlehnbügel eröffnet sich eine ganz neue Flexibilität, da er von zwei Seiten aus bequem zu nutzen ist. Somit konnte Falco die Fahrradgarage bei der U-Bahn-Station Capelle Zentrum in Capelle aan den IJssel bei Rotterdam vollständig mit allen gewünschten Möglichkeiten für bequemes und sicheres Fahrradparken ausstatten.
Falco – Experte für Fahrradparken und Stadtmobiliar
Falco ist seit mehr als 65 Jahren der Experte für Fahrradparken und Stadtmobiliar, sowie für die optimale Gestaltung von Freiräumen. Wenn Sie mehr über unsere Projekte erfahren möchten oder Fragen zu unseren verschiedenen Produkten haben, nehmen Sie einfach Kontakt mit uns auf. Abonnieren Sie auch unseren Newsletter, so bleiben Sie immer auf dem Laufenden über Fahrradparksysteme, Stadtmobiliar und alle Neuigkeiten über Falco.
- Designs für einfache Montage und Demontage
- reparieren, aufarbeiten und recyceln
- (Rest-)Werterhalt von Materialien und Arbeitsleistung
- Zertifizierungen nach ISO 9001, ISO 14001, VCA, FSC® und der CO2-Leistungsleiter (KAM)
Möchten Sie mehr erfahren?
Falco denkt gerne mit über die Verwendung von Kreislaufprodukten für eine schönere und verantwortungsvollere Gestaltung Ihres Außenbereichs.


